
POGGIBONSI (SI)

PRESTIGIOSA SOLUZIONE PRONTA DA ABITARE ! ! !
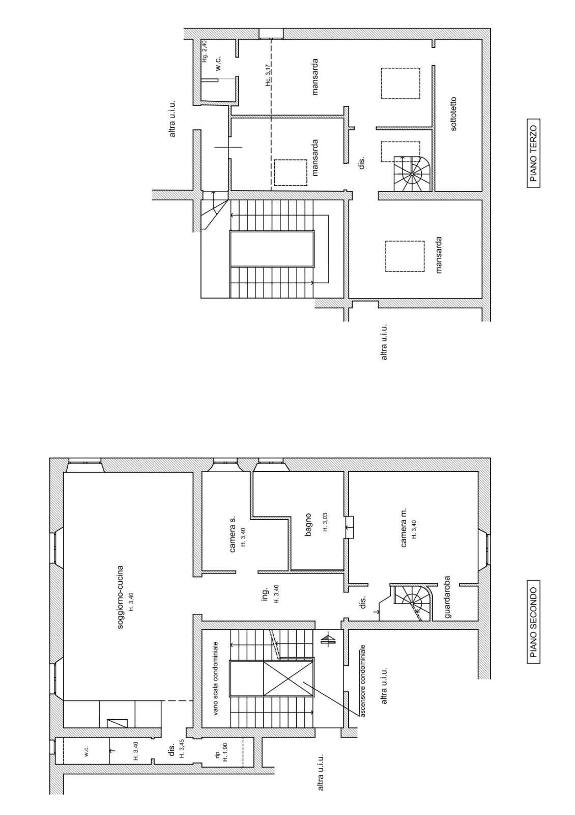
Nelle adiacenze del centro storico di Poggibonsi, zona Viale Garibaldi, all'interno di uno storico edificio dei primi del 900, proponiamo in vendita questa signorile abitazione, ristrutturata nel 2019, posta all'ultimo piano servito da ascensore.
Un abitazione dove gli ambienti e le rifiniture sono stati studiati con meticolosità ed accuratezza, dove troviamo uno stile moderno abbinato a particolari classici.
Un luogo, di prestigio dove emergono classe ed eleganza, composta al piano d'arrivo da: un ampio ingresso con zona libreria e guardaroba, zona living con camino, cucina a vista, bagno a servizio e ripostiglio dispensa, camera padronale con vano gurdaroba, bagno con doccia dotato anche di mini piscina e mirror tv, camera singola.
Al piano superiore, avente anche accesso indipendente, troviamo una camera mansardata con bagno privato, uno studio guardaroba, un vano ripostiglio sottotetto ed una comoda zona lavanderia.
Locale deposito al piano terreno con addolcitore ed autoclave.
I pavimenti sono in parquet, quello del secondo piano montato a spina all'italiana e quello del piano terzo a tavoloni.
Una soluzione esclusiva, ideale per chi ricerca rappresentanza, comfort e centralità.
Chiamaci adesso al 3394983021 per maggiori informazioni e visite all'immobile.